現場の諸条件、プロジェクトの特性、元請のご要望などを考慮し、常に最適化されたプランをご提案。
型枠工事の計画から施工、品質確認まで一貫対応いたします。
型枠設計から
施工まで
一貫対応
工程に沿ったスケジュール管理を組立て、高度な技術連携による一貫体制で安全に、高品質な精度を実現致します。
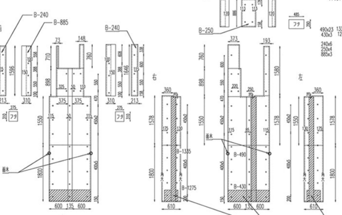
● 設計図、工程、施工条件、に基づいた型枠施工計画の立案
● 型枠支保工の計算・計画・作図
● 型枠工法の提案
高度な技術と
ノウハウを
誇る
型枠大工たち
高度な技術と
ノウハウを
誇る
型枠大工たち
● 人にしか出来ない『ものづくり』の追求
● 品質・安全・工程管理のより一層の向上
● 専属協力会社との深いパートナーシップ連携の強化
● 工法改善・生産性向上への積極な取組み
● 建築廃棄物の削減
● 労働環境の改善
有資格者
| 資格 (免許・技能講習修了者) |
社員・専属協力会社 | 協力会社 | 合計 |
|---|---|---|---|
| 1級建築士 | 1 | 0 | 1 |
| 1級建築施工管理技士 | 2 | 0 | 2 |
| 2級施工管理技士 (躯体) |
4 | 0 | 4 |
| 衛生管理者(第1種) | 1 | 0 | 1 |
| 建築物環境衛生管理 技術者 |
1 | 0 | 1 |
| 優秀施工者国土交通 (建設)大臣顕彰者 |
3 | 0 | 3 |
| 登録型枠基幹技能士 | 13 | 0 | 13 |
| 1級型枠施工技能士 | 23 | 0 | 23 |
| 大林組スーパー職長 | 7 | 0 | 7 |
| 型枠支保工作業主任者 | 49 | 36 | 85 |
| 足場の組立等 作業主任者 |
7 | 2 | 9 |
| 玉掛技能者(1t以上) | 51 | 36 | 87 |
| フオークリフト運転員 (1t以上) |
34 | 15 | 49 |
| はい作業主任者 | 13 | 5 | 18 |
| 酸素欠乏・硫化水素 危険作業主任者 |
12 | 15 | 27 |
| 車両系建設機械運転者 | 5 | 0 | 5 |
| 職長・安全衛生責任者 | 40 | 13 | 53 |
| 危険物取扱者 | 1 | 0 | 1 |
品質への取り組み
荒井工務店の考える品質とは、施工品質だけではなく、業務の安全性、地球環境の保全、地震に備えた構造設計、施工中の近隣住民の方への配慮、お客様への対応、 コンプライアンスなど、企業市民に求められるすべての品質を意味します。
建設マスター
(優秀施工者国土交通(建設)大臣顕彰者)
建設マスターとは、優秀施工者国土交通(建設)大臣顕彰者の通称です。優秀施工者国土交通(建設)大臣顕彰制度は、優秀な技能・技術を有する建設現場の労働者で、直接施工に従事している方を「優秀施工者」として国土交通(建設)大臣が、顕彰することで、「ものづくり」に携わっている者の誇りと意欲を増進させ、能力と資質建設マスターシンボルの向上を促進するとともに、その社会的評価・地位の確立を図り、建設業の健全な発展に資することを目的として平成4年度に創設されました。
顕彰の対象となる人は、建設現場において実際に工事施工に携わった方の中で、特に技能・技術及び人格等が優れ、後進の指導・育成により「建設」の質の維持向上に貢献できる人を、都道府県・業界団体及び地方整備(建設)局から推薦を受けた方の中から、学識経験者・業界関係者・行政等から構成する「優秀施工者国土交通大臣顕彰審査委員会」において、以下の項目を主体として審査し選考いたします。
● 工事施工に際し、必要とされる優秀な「技」を持っているか?
● 工事施工に際し、多大な貢献をしている「ポイントゲッター」であるか?
● 後進の指導育成に積極的に取り組む「先生」と言えるか?
● 安全・衛生面の向上に配慮する「セーフティー・クリーンマン」か?
● 建設現場に従事する者が模範とすべき「優れた人格」を持っているか?
こうして顕彰された「建設マスター」の方々の功績が広く称えられ、ものづくりに携わる方々の誇りと意欲 が高まることが期待されます。また、「ものづくり」の現場においてはその質を高めていくことに加えて、非熟練者への指示・指導に係わる能力を兼ね備えた「建設マスター」の役割が、今後ますます高まっております。(建設マスターホームページより抜粋)
建設マスター紹介
中島 良次
【中島班 親方】
第一回受賞 平成4年度
<主な担当現場>
コープ野村緑山ヒルズ2
都立武道館
ガーデンコートつくば
TBS放送センター
平成21年 勇退
尾形 和廣
【(有)尾形工務店 代表取締役】
第8回受賞 平成11年度度
<主な担当現場>
表参道ビルズ新築工事
東京アクアティクスセンター
東京スカイツリー建設工事
虎ノ門・六本木再開発事業新築工事
虎ノ門ヒルズ新築工事
赤坂一丁目再開発計画
平成28年春の叙勲
瑞宝單光章 受章
佐々 木武
【(有)ササキ工務店 代表取締役】
第11回受賞 平成14年度
<主な担当現場>
千葉大学付属病院新築工事
曳舟地区再開発新築工事
KTI新築工事
麻布子供プラザ新築工事
日立我孫子営研新築工事
日本橋二丁目地区第一種市街地再開発A街区工事
令和3年12月勇退
伊藤 勝則
【(有)伊藤工務店 代表取締役】
第23回受賞 平成26年度
<主な担当現場>
パレスホテル建替新築工事
淑徳中高学校建替Ⅲ期工事新築工事
イオンモール幕張新都心新築工事
大久保三丁目計画新築工事
桜上水ガーデンズ新築工事
(仮称)帝京大学八王子キャンパス新校舎新築工事
葛西トラックターミナル
椎葉 信広
【(株)椎葉工務店 代表取締役】
第29回受賞 令和2年度
<主な担当現場>
東京ソラマチスイートタワー新築工事
虎ノ門ヒルズ新築工事
日本生命大手町ビル新築工事
日本橋2丁目北地区新築工事
浜松町駅前プロジェクト
アパホテル(横浜ベイタワー)新築工事
誠高会おおたかの森病院第3期増築工事
印西泉野ビル新築工事
大林組
スーパー職長の紹介
株式会社大林組と、建設産業の魅力を高め、若年建設技能者の入職・定着率を向上させるための諸施策の一環として、平成23年度から「大林組認定基幹職長」(通称:スーパー職長)制度を発足させることとしました。
この制度は、建設技能者にとって身近な上司であり、建設現場において一定の責任を与えられる職長のうち、特に優秀な者を選定して建設技能者の目標となる理想的な職長像として認定するとともに、一定の収入の上積みを行うもので、150人程度を認定する予定です。
なお、本制度は社団法人日本建設業団体連合会が平成21年4月に公表した「建設技能者の人材確保・育成に関する提言」において提唱されている優良技能者認定制度にも即した取り組みとなっています。加えまして、今回大林組が発足した制度により収入の上積みをする額は、当提言内で設定されている「標準目標年収600万円」を達成可能な水準としました。
2024年
スーパー職長認定者
上端職長
椎葉職長
村上職長
青柳職長
佐藤職長
小向職長
鶴岡職長
登録型枠基幹技能者
| 資格名 | 所属 | 氏名 |
|---|---|---|
| 登録型枠基幹技能者 | 荒井工務店 | 上端正昭 |
| 登録型枠基幹技能者 | 荒井工務店 | 大城祐貴 |
| 登録型枠基幹技能者 | 尾形工務店 | 尾形和廣 |
| 登録型枠基幹技能者 | 尾形工務店 | 青柳好一 |
| 登録型枠基幹技能者 | 尾形工務店 | 佐藤祐二 |
| 登録型枠基幹技能者 | 伊藤工務店 | 伊藤 勝則 |
| 登録型枠基幹技能者 | 伊藤工務店 | 村上貞幸 |
| 登録型枠基幹技能者 | 伊藤工務店 | 小向崇普 |
| 登録型枠基幹技能者 | 伊藤工務店 | 三浦隆 |
| 登録型枠基幹技能者 | 椎葉工務店 | 椎葉信広 |
| 登録型枠基幹技能者 | 椎葉工務店 | 奈良春樹 |
| 登録型枠基幹技能者 | 鶴岡 | 鶴岡孝行 |
| 登録型枠基幹技能者 | ハタウチ | 畑内しのぶ |
| 登録型枠基幹技能者 | 森本工務店 | 森本豪 |
| 登録型枠基幹技能者 | 森本工務店 | 森山光裕 |
| 登録型枠基幹技能者 | 森本工務店 | 塩谷史雄 |
| 登録型枠基幹技能者 | 小久保工務店 | 小久保有博 |